hanneskalau.eu
︎
Hannes Kalau
Info
Hannes Kalau
Info
Insieme
2025
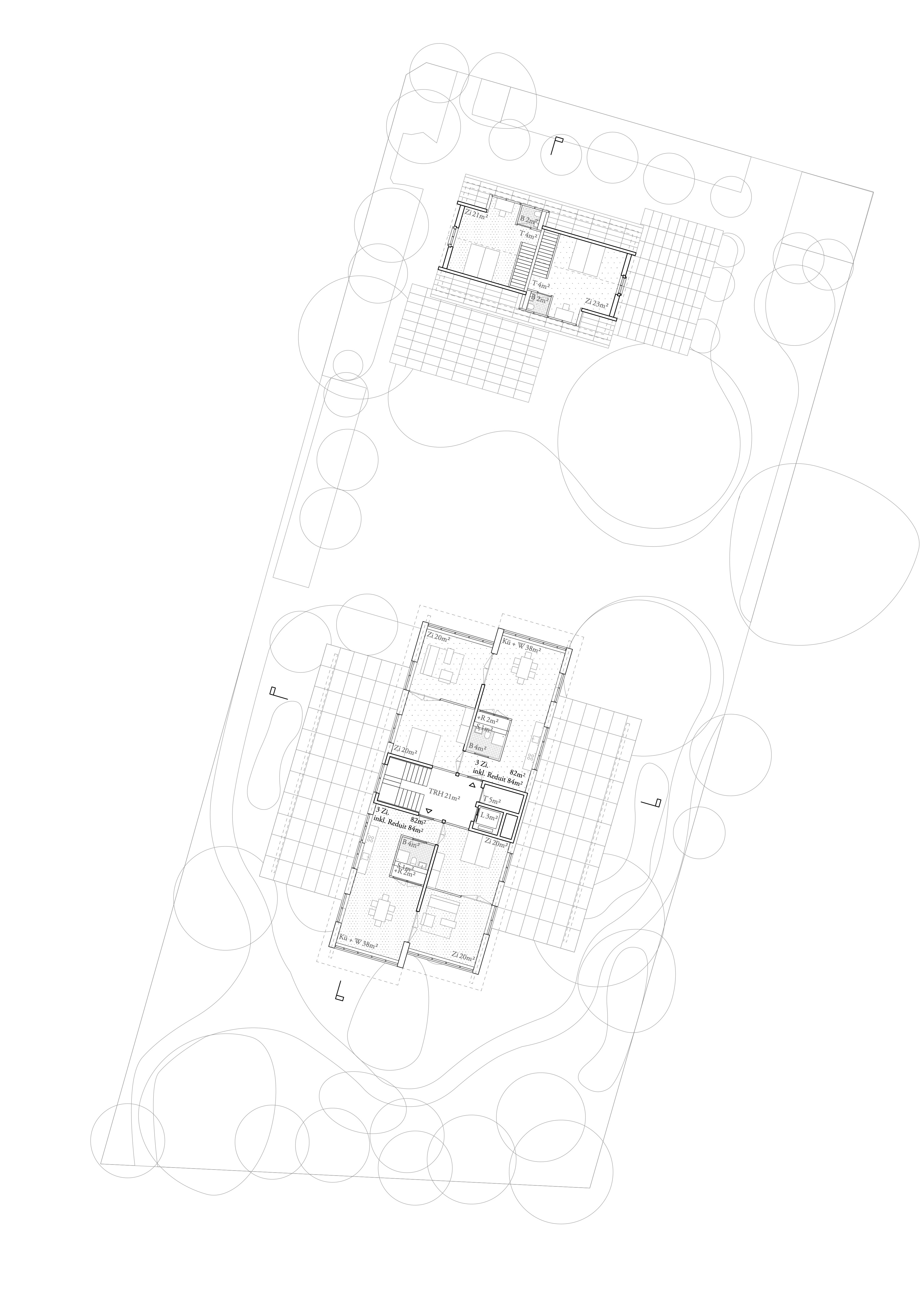
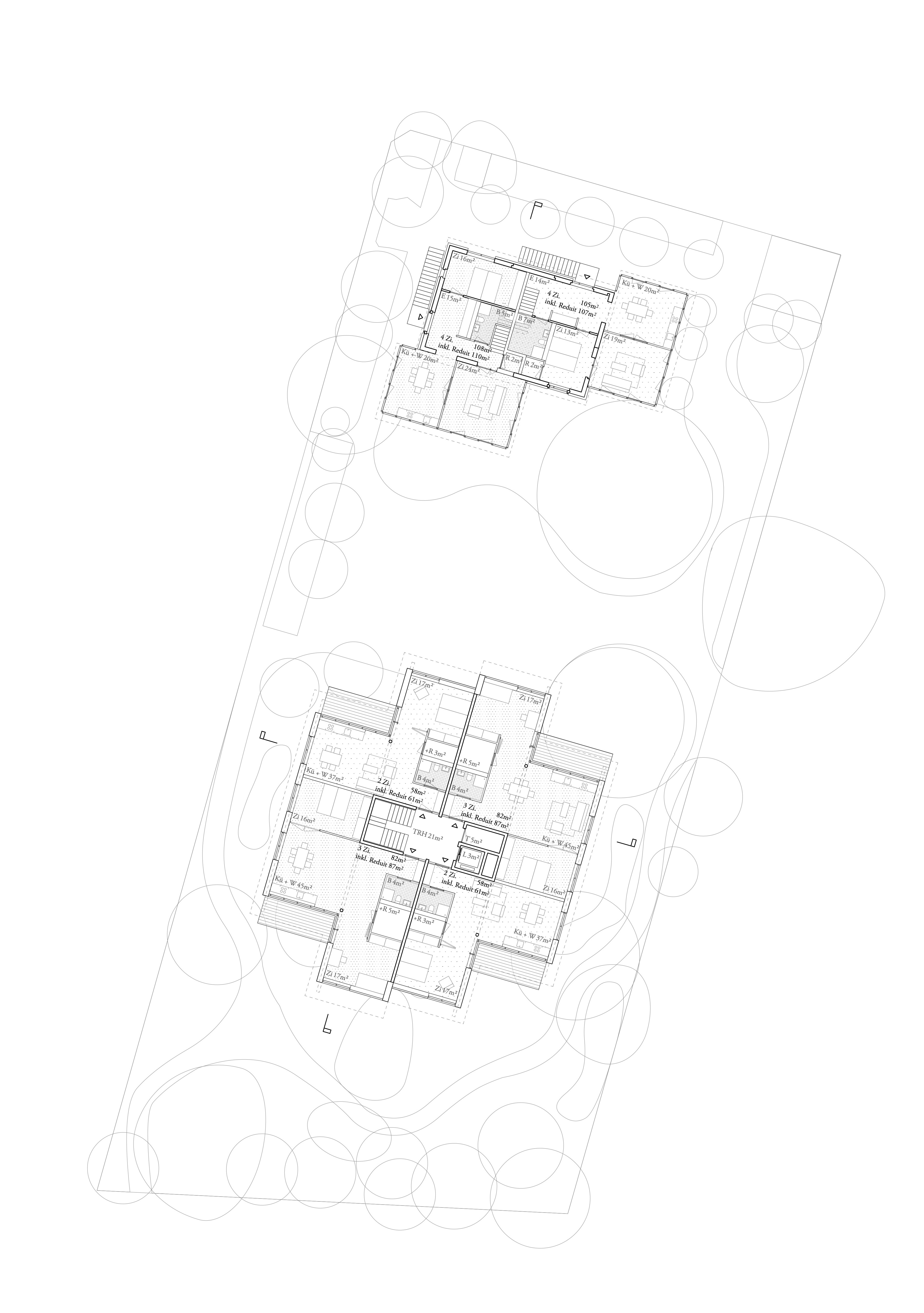
Wartenbergstrasse
Landschaft:
︎︎︎P
atrizia Wunderli
Verfahren: offener, einstufiger Wettbewerb
Ort: Pratteln, CH
Programm: 12 genossenschaftliche Wohnungen
Bauherrschaft: Gewona
︎︎︎
︎
2025